河长制水质在线氨氮检测传感器
一、产品介绍
智能型氨氮传感器是一款检测水中氨氮(NH4+-N)含量的在线设备,适用于各种水体,包括湖泊、溪流、地下水以及废水等。传感通过电极法测量氨氮值。NH4+电极提供主要测量,它测量的是氨离子(NH4+)。 传感器防水等级为IP68,支持MODBUS协议,带有温度和pH自动补偿功能,环保型设计。精度更高,测量范围更广,稳定性更强。
二、工作原理
氨氮是工业、农业和生活废水中常见的一种污染物。氨氮会消耗水体中的溶解氧,导致水体富营养化。智能型氨氮传感器基于离子选择法测量铵离子,由工作电极、参比电极、离子选择膜和电解液组成。只有待测铵离子可以迁移通过离子选择膜,并发生电荷变化,在工作电极上产生电位,电位值与离子浓度成比例,参比电极电位恒定不变。变送器基于能斯特方程,测量工作电极与参比电极之间的电位差并转换成氨氮浓度,基于电位法测量原理,不受色度和浊度的影响。
在污水测量时,钾离子和铵离子的化学属性相似,是最显著的干扰因子,会造成测量值偏高,因此需要进行钾离子补偿,此外还对水样的温度、pH进行动态补偿。
三、产品特点
具有pH、钾离子和温度补偿,适用多种现场;
每支电极可独立更换,操作简单,维护量少;
测量准确、检出限低,长期漂移小;
响应时间快,及时反映水样变化;
PT1000温度补偿,精度可达±0.1℃;
耐腐蚀外壳,可长期水下工作,结构紧凑;
RS485通讯接口,标准Modbus协议,便于集成。
四、技术参数
型 号 AMT-AD300
量程范围和
分辨率 0~100.00mg/L 0.01mg/L
0~1000.0mg/L 0.1mg/L
精 度 ±10%或±1mg/L,±0.5℃
工作温度 0~40℃
工作压力 <0.1MPa
介质的pH范围 4~10pH
温度补偿 自动温度补偿(Pt1000)
供 电 12~24VDC
信号输出 RS-485(Modbus/RTU)
外壳材质 PVC和POM
安装方式 3/4"NPT管螺纹,浸入式安装
线缆长度 5米,其它长度可定制
校准方式 两点校准
功耗 0.2W@12V
防护等级 IP68
五、尺寸图
*注:智能型氨氮传感器接头为M16-5芯防水接头公头。
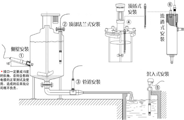
六、传感器安装
注:智能型氨氮传感器安装时不能倒置或水平安装,至少倾斜15度角以上安装。
七、电气连接
传感器线缆为4芯双绞屏蔽线,线序定义:
红色线—电源线(12~24VDC)
黑色线—地线(GND)
蓝色线—485A
白色线—485B
通电前应仔细检查接线顺序,避免因接线错误而造成不必要的损失。
接线说明:考虑到线缆长期浸泡在水中(包括海水)或暴露在空气中,所有接线处均要求做防水处理,用户线缆应具有一定的防腐蚀能力。
八、应用市场
适用于市政污水、生活污水、农业污水、工业废水、过程控制、硝化处理和曝气池等领域的在线监测和便携监测,便于监测浮标、监测浮排、监测船等集成应用。