毫秒级阻断“电老虎”!安科瑞弧光保护解决方案,树立电力安全防线

2025-06-24 11:20:15
关注
摘要 弧光本质上是空气中发生的高强度气体放电现象。当两个存在电位差的导体(如相线之间、相线与地线或设备外壳之间)在空气中异常接近或接触时,空气被瞬间电离击穿,形成高温、高亮度的等离子体电弧通道。其温度可高达 8000°C 至 15000°C(远超太阳表面温度),并伴随强烈的光辐射、爆炸冲击波和熔融金属喷射。

一、 认识“电老虎”:弧光及其产生原因

1.1 什么是弧光?

弧光本质上是空气中发生的高强度气体放电现象。当两个存在电位差的导体(如相线之间、相线与地线或设备外壳之间)在空气中异常接近或接触时,空气被瞬间电离击穿,形成高温、高亮度的等离子体电弧通道。其温度可高达 8000°C 至 15000°C(远超太阳表面温度),并伴随强烈的光辐射、爆炸冲击波和熔融金属喷射。

1.2 弧光为何会产生?

设备绝缘故障: 绝缘材料老化、受潮、积污、机械损伤导致绝缘性能下降或失效。

连接不良/接触故障: 松动、腐蚀、氧化或安装不当的电气连接点,导致接触电阻变大,产生高温引发弧光。

异物或小动物侵入: 金属工具、小动物(如老鼠)等意外进入带电间隔,造成相间或相对地短路。

误操作: 带电误操作(如误合接地开关、带负荷拉隔离开关)、未按规定流程操作。

设备缺陷或老化: 断路器、隔离开关等设备内部故障或机构卡涩未能有效分断故障电流。

过电压: 雷击或操作过电压导致绝缘薄弱点击穿。

灰尘与湿气: 导电性粉尘积累或湿气凝结降低了设备的绝缘强度。

二、相关行业标准/规范

2.1 能源行业标准:

NB∕T 42076-2016 弧光保护装置选用导则;

2.2 国网技术规范:

国家电网公司智慧变电站工程“12kV空气绝缘高压开关柜集中采购项目”技术规范书;

三、弧光保护装置应用场景

3.1 弧光保护装置-集中式母线弧光保护方案

3.1.1 中压场景应用

3.1.2 低压场景应用

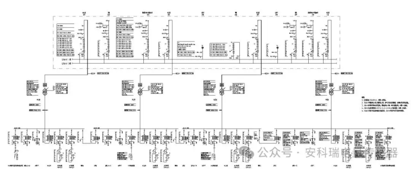
3.2 弧光保护装置— 集中式母线弧光+馈线式弧光保护方案

3.2.1 中低压场景应用

3.2.2 典型配置

在I段母线、II段母线分别配置1台ARB6弧光保护装置,每面馈线柜分别配置1台ARB4弧光保护装置,每面柜子的母线室、手车室、电缆室各安装1个ARB-S弧光探头。

弧光保护逻辑:

I段ARB6弧光装置监测I段各柜母线室、手车室以及1#进线柜电缆室弧光,并采集进线1和母联电流,动作跳闸进线1和母联开关;

II段ARB6弧光装置监测II段各柜母线室、手车室以及母联柜电缆室、2#进线柜电缆室弧光,并采集进线2和母联电流,动作跳闸进线2和母联开关;

每面馈线柜ARB4弧光装置监测本馈线柜电缆室弧光,并采集本馈线柜电流,动作跳闸本馈线柜开关。

四、产品介绍

4.1 ARB系列弧光保护装置

4.2 弧光探头

弧光探头安装

五、弧光保护装置 — ARB安装实例

5.1 现场安装图片

5.2 安装前准备

①尽量全过程了解掌握项目施工进展,尤其是拼柜完成时间节点。

②确认好各元器件的开孔和电流采集、动作出口接线。

③根据项目清点物料和工具

物料包括探头数量/塑料光纤数量。

工具包括扎带和固定粘块/吊牌或套管以及开孔防护贴和软管(如有条件)/万用表。

5.3 调试注意事项

测试前建议先把弧光保护装置跳闸出口压板断开后,测试每个弧光探头回路的保护逻辑准确性;

配合验收确认方做弧光保护功能测试,一般安装和测试工作由成套方负责,我司可适当交流指导。

六、应用案例-内蒙古中国移动数据中心

6.1 项目概况

本项目为中国移动数据中心的110kV变电站,共有4台110kV/10kV主变,10kV开闭所有4个段母线,每段母线面对面排列,共有10kV高压开关柜100余面。

6.2 项目需求

为保障开关柜内部故障时产生的电弧光对设备及人员造成严重伤害,在高压开关柜内装设快速动作电弧光保护装置和弧光探头。

6.3 配置方案

本项目10kV开闭所有4个段母线,每段母线面对面排列,共有8段母线。在每面柜子的母线室和断路器室分别配置1个弧光探头,一段母线配置1台弧光保护装置采集弧光探头与10kV进线和母线柜电流,通过双判据实现全站10kV开闭所的弧光保护功能,保障系统可靠运行。

配置方案:

ARB6-A30,2台;

ARB6-A24,2台;

ARB6-A18,4台;

ARB-S0,172只。

您觉得本篇内容如何
评分

评论

您需要登录才可以回复|注册

提交评论

广告
提取码
复制提取码
点击跳转至百度网盘